
Kit Inicial
PANELES
° PANELES EXTERIORES FORRADOS EN MEDIA LUNA O TINGLADO (MADERA SECA) 2.40 altura
° FIELTRO ASFALTICO (AISLACION HUMEDAD)
° TABIQUERIA 2 X 3 PIE DERECHO 60 CM, CADENETA DOBLE.
° PANELES INTERIORES SIN FORRAR.
TECHUMBRE
° CERCHAS INDUSTRIALES 1.1/2 “ X 4”. IMPREGNADA Y CON REFUERZO PLACA METALICA.
° COSTANERAS TABLA 1 X 4.
° PLANCHAS DE ZINC SIN DIMENSIONAR
° HOJALETERIA, CUMBRERAS, LATERALES Y CANALES.
° MEDIA LUNAS O TINGLADO PARA FORRAR CERCHAS DELANTERAS, TRASERAS Y LATERALES.
° FIELTRO ASFALTICO (AISLACION HUMEDAD)
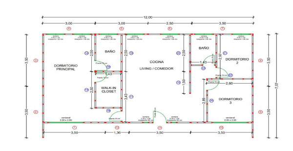
DISTRIBUCION
1 DORMITORIO suite 3 X 6 MTS
1 BAÑO suite Y WALK-IN CLOSET 1.50 X 2.50 MT2
1 DORMITORIO 2.6 X 3
1 DORMITORIO 2 X 3
LIVING/COMEDOR/COCINA 4 x 6
PORCHE 12 X 1 MT2

