
Kit Inicial
PANELES
° PANELES EXTERIORES FORRADOS EN MEDIA LUNA O TINGLADO.
° MAS FIELTO ASFALTICO.
° TABIQUERIA 2 X 3 PIE DERECHO 60 CM.
° PANELES INTERIORES SIN FORRAR.
TECHUMBRE
° VIGAS A LA VISTA EN LIVING-COMEDOR-COCINA Y TERRAZA. VIGA MADRE EN PINO OREGON Y CIELO TERCIADO 9MM.
° CERCHAS TABLA 1 X 4.
° COSTANERAS TABLA 1 X 4. A 60 CM.
° PLANCHAS DE ZINC 5V SIN DIMENSIONAR, CONTINUO. COLOR ZINCALUM .
° CABELLETES Y LIMAHOYAS.
° MAS FIELTO ASFALTICO.
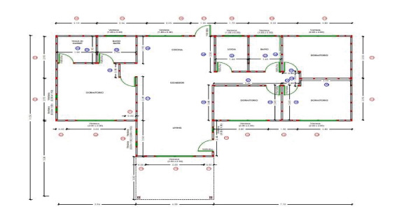
DISTRIBUCION
1 DORMITORIO SUITE 5.00 X 6.00 MTS,1
BAÑO SUITE Y WALK-IN
CLOSET 2.50 X 2.00MTS
3 DORMITORIOS 3.50 X 3.00
2 BAÑOS 1.60 X 2.50
LIVING / COMEDOR / COCINA 5.00 X 11.00 MTS

